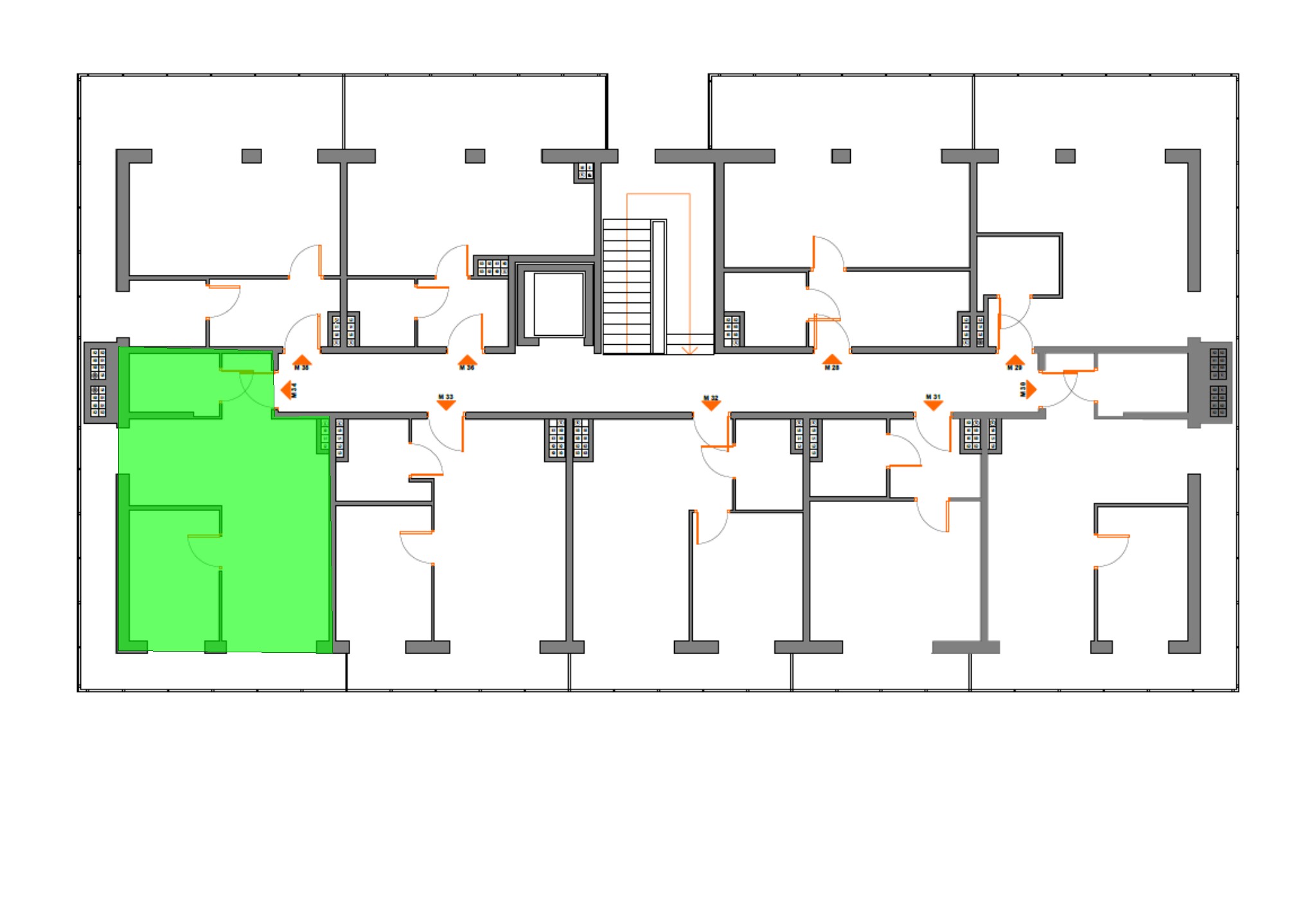
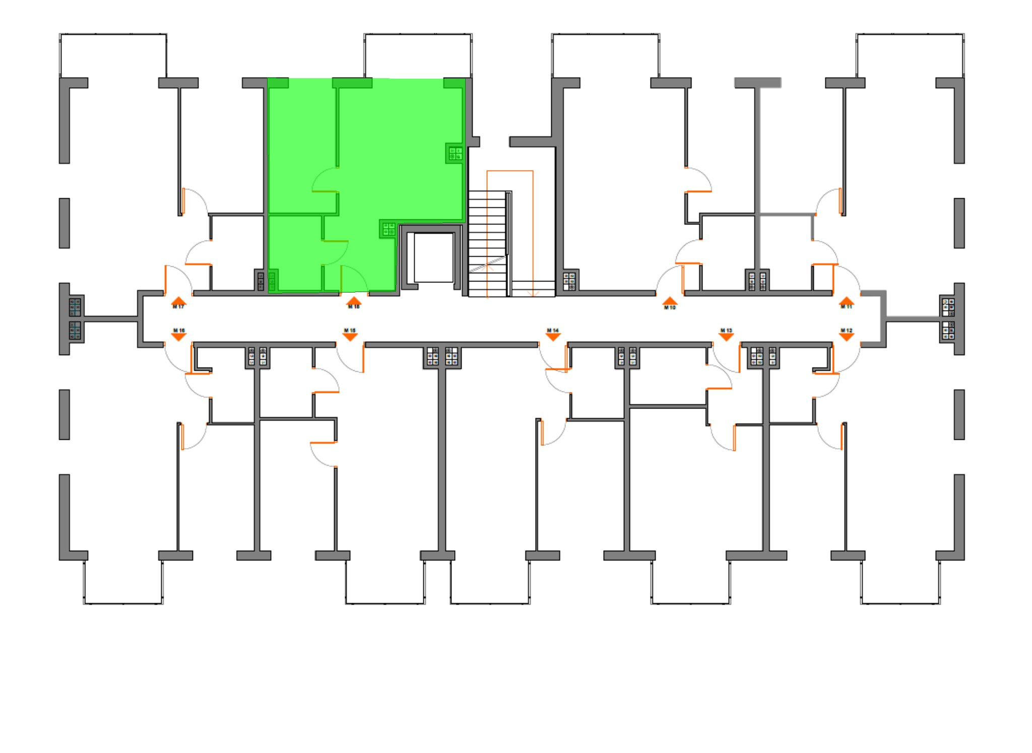
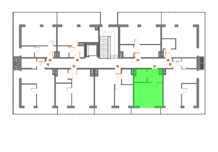
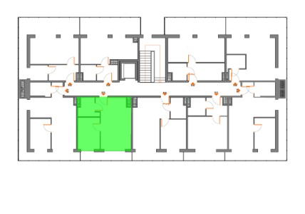
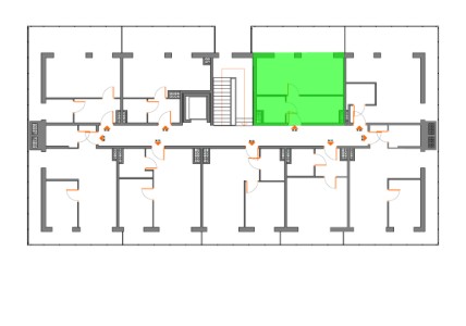
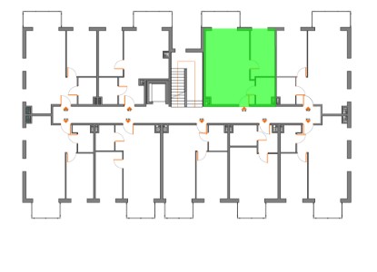
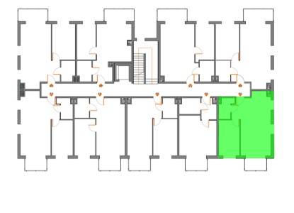
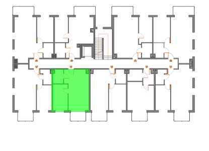
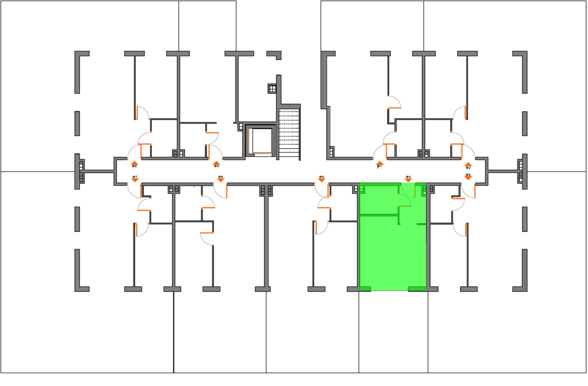
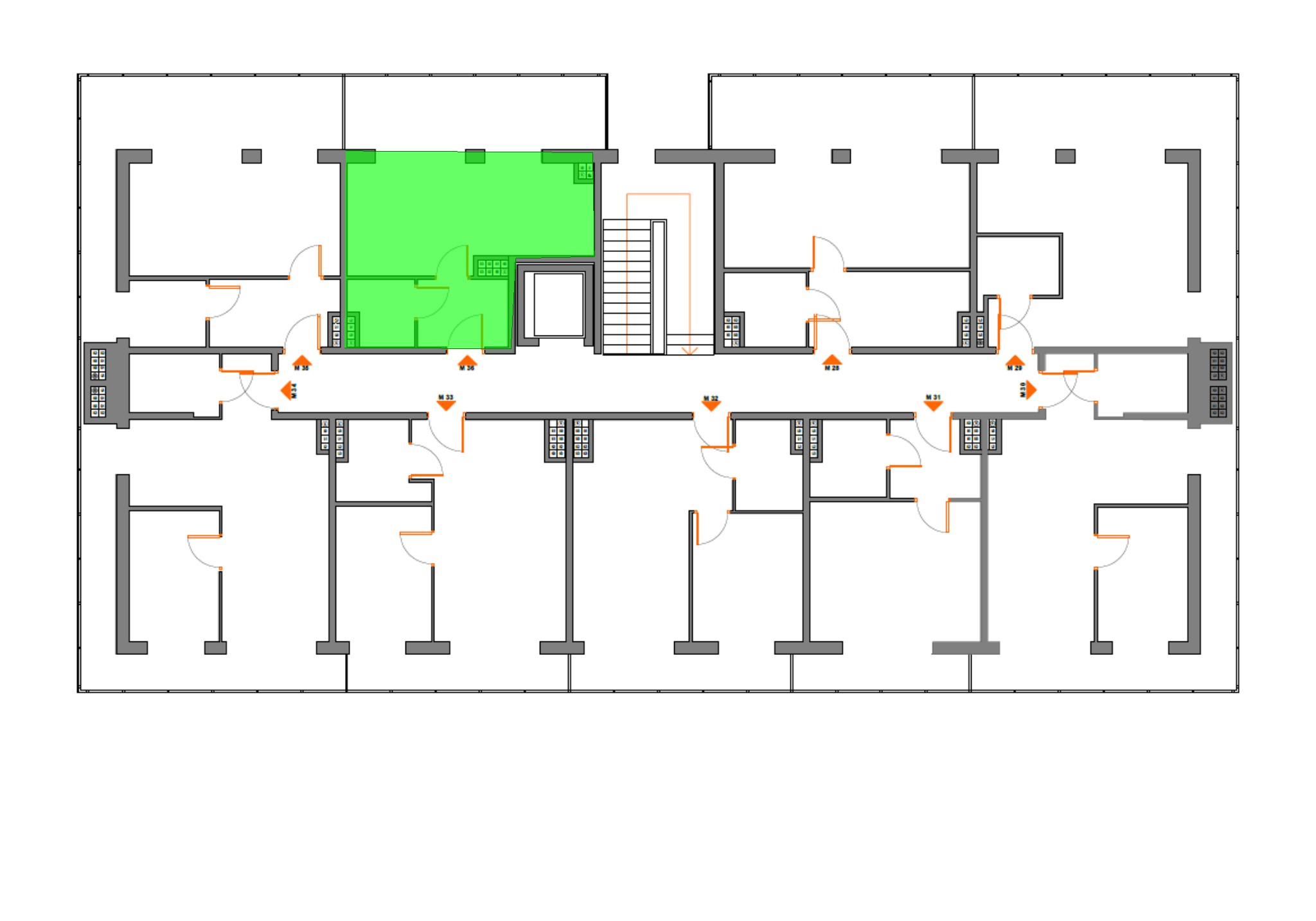
Wybierz piętro

Aleja Magnoliowa A

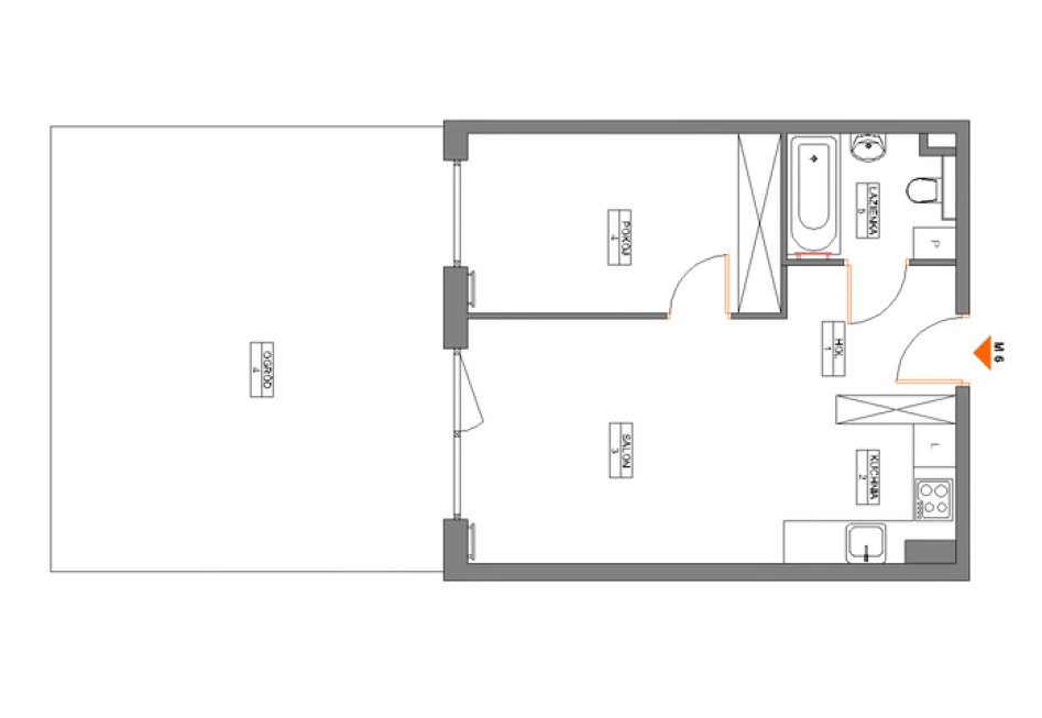
Mieszkania

Adres Piętro Pokoje Pow Powierzchnia Cena brutto Status
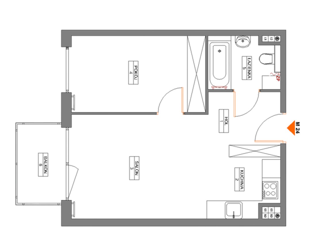
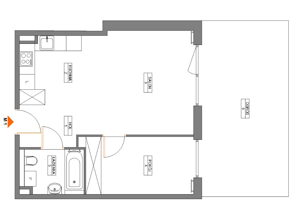
Aleja Magnoliowa A m. 1 Parter 2 43,14 m2
332 178 PLN 7 700 PLN/m2
Historia cen
Dostępne
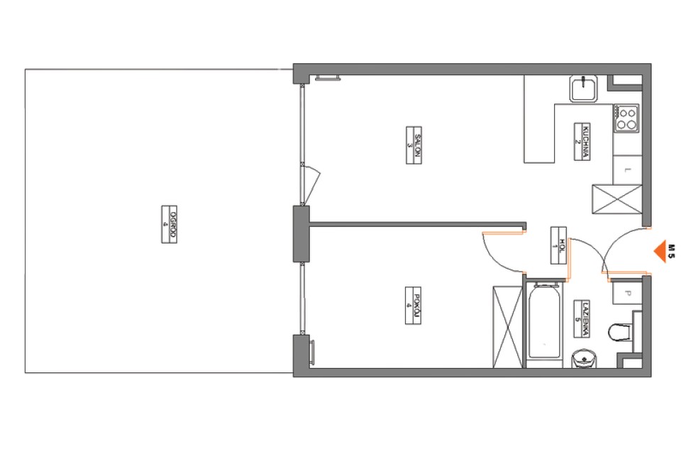
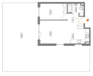
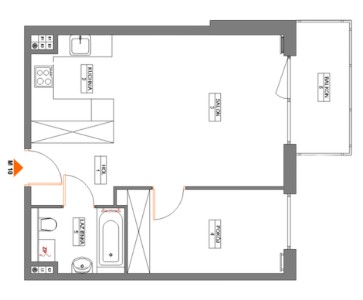
Powierzchnia 43,14 m2
1 Hol 5,60 m2 2 Kuchnia 4,97 m2 3 Salon 18,29 m2 4 Pokój 9,95 m2 5 Łazienka 4,33 m2
Atrybuty Ogródek 24,28 m2 Apteka Action, Dino, Biedronka Sala zabaw (bawialnia) Restauracja, pizzeria, kawiarnia
Aleja Magnoliowa A m. 2 Parter 2 46,53 m2
358 281 PLN 7 700 PLN/m2
Historia cen
Dostępne
Powierzchnia 46,53 m2
1 Hol 6,41 m2 2 Kuchnia 6,75 m2 3 Salon 17,06 m2 4 Pokój 12,08 m2 5 Łazienka 4,23 m2
Atrybuty Ogródek 71,00 m2 Apteka Action, Dino, Biedronka Sala zabaw (bawialnia) Restauracja, pizzeria, kawiarnia
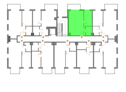
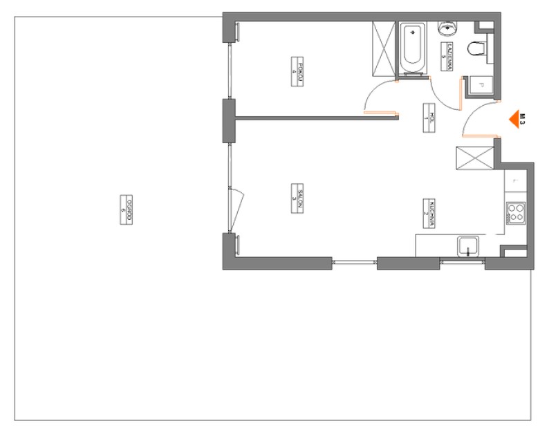
Aleja Magnoliowa A m. 3 Parter 2 44,25 m2
340 725 PLN 7 700 PLN/m2
Historia cen
Dostępne
Powierzchnia 44,25 m2
1 Hol 5,83 m2 2 Kuchnia 6,63 m2 3 Salon 17,00 m2 4 Pokój 10,93 m2 5 Łazienka 3,86 m2
Atrybuty Ogródek 92,00 m2 Apteka Action, Dino, Biedronka Sala zabaw (bawialnia) Restauracja, pizzeria, kawiarnia
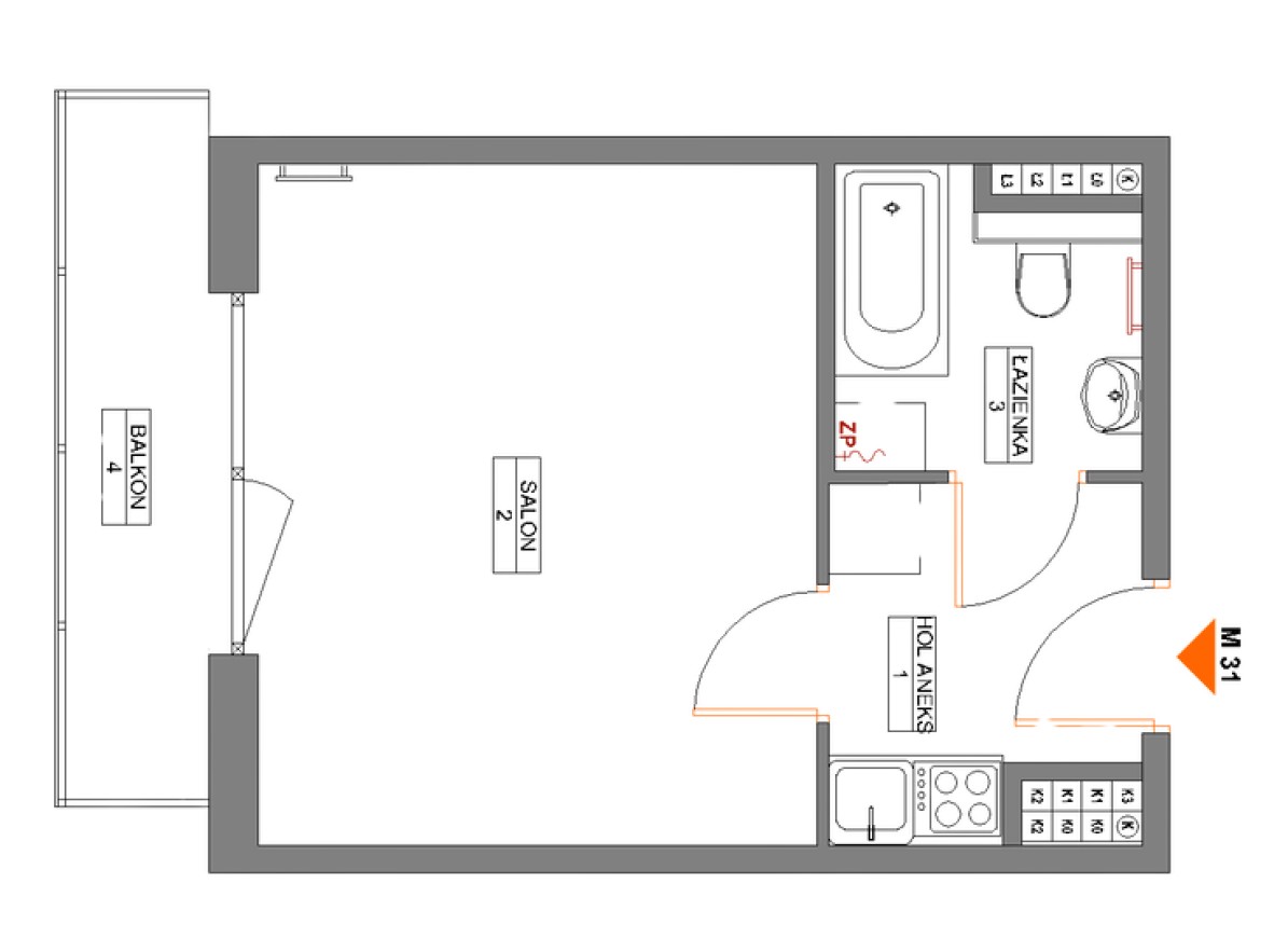
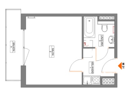
Aleja Magnoliowa A m. 4 Parter 1 30,17 m2
232 309 PLN 7 700 PLN/m2
Historia cen
Dostępne
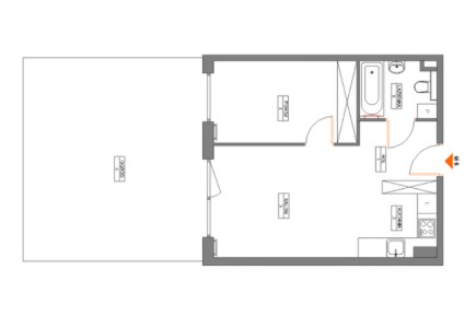
Powierzchnia 30,17 m2
1 Hol z aneksem 4,98 m2 2 Salon 20,42 m2 3 Łazienka 4,77 m2
Atrybuty Ogródek 26,00 m2 Apteka Action, Dino, Biedronka Sala zabaw (bawialnia) Restauracja, pizzeria, kawiarnia
Aleja Magnoliowa A m. 5 Parter 2 40,82 m2
314 314 PLN 7 700 PLN/m2
Historia cen
Dostępne
Powierzchnia 40,82 m2
1 Hol 4,76 m2 2 Kuchnia 5,23 m2 3 Salon 13,72 m2 4 Pokój 13,04 m2 5 Łazienka 4,07 m2
Atrybuty Ogródek 35,00 m2 Apteka Action, Dino, Biedronka Sala zabaw (bawialnia) Restauracja, pizzeria, kawiarnia
Aleja Magnoliowa A m. 6 Parter 2 40,86 m2
314 622 PLN 7 700 PLN/m2
Historia cen
Dostępne
Powierzchnia 40,86 m2
1 Hol 5,37 m2 2 Kuchnia 4,41 m2 3 Salon 15,70 m2 4 Pokój 11,26 m2 5 Łazienka 4,12 m2
Atrybuty Ogródek 35,00 m2 Apteka Action, Dino, Biedronka Sala zabaw (bawialnia) Restauracja, pizzeria, kawiarnia
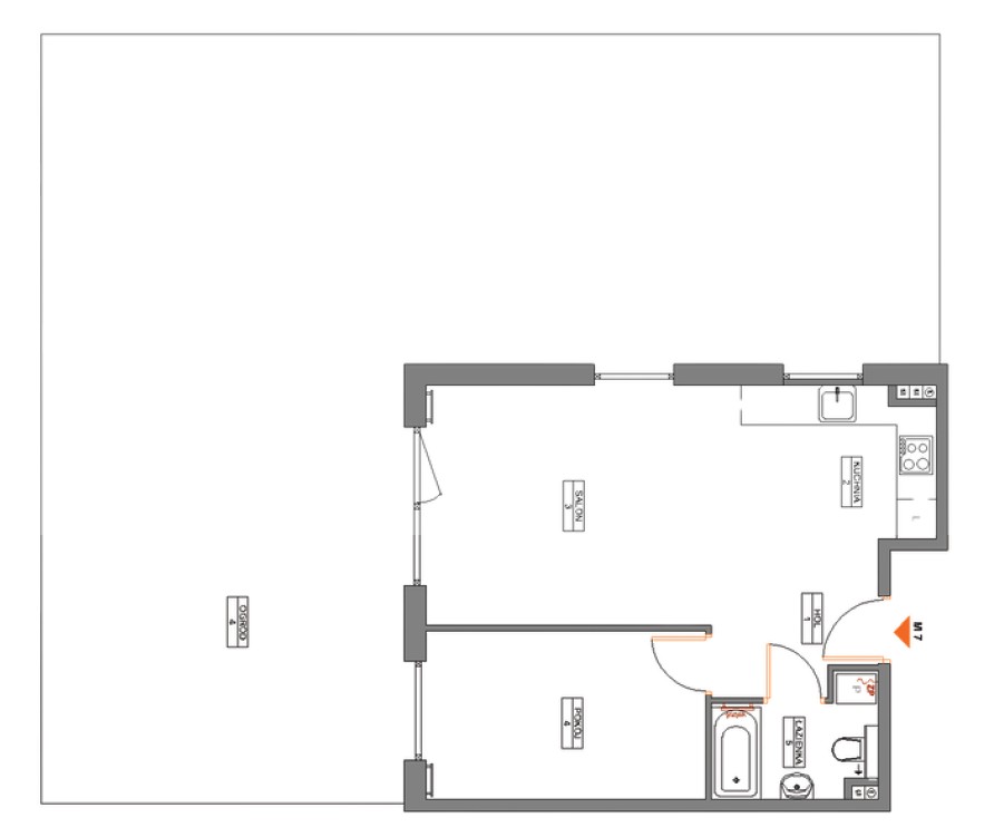
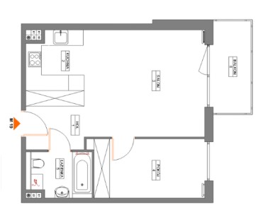
Aleja Magnoliowa A m. 7 Parter 2 44,54 m2
342 958 PLN 7 700 PLN/m2
Historia cen
Dostępne
Powierzchnia 44,54 m2
1 Hol 5,83 m2 2 Kuchnia 6,63 m2 3 Salon 17,12 m2 4 Pokój 11,03 m2 5 Łazienka 3,93 m2
Atrybuty Ogródek 104,00 m2 Apteka Action, Dino, Biedronka Sala zabaw (bawialnia) Restauracja, pizzeria, kawiarnia
Aleja Magnoliowa A m. 8 Parter 2 46,64 m2
359 128 PLN 7 700 PLN/m2
Historia cen
Dostępne
Powierzchnia 46,64 m2
1 Hol 6,26 m2 2 Kuchnia 6,75 m2 3 Salon 17,18 m2 4 Pokój 12,15 m2 5 Łazienka 4,30 m2
Atrybuty Ogródek 81,00 m2 Apteka Action, Dino, Biedronka Sala zabaw (bawialnia) Restauracja, pizzeria, kawiarnia
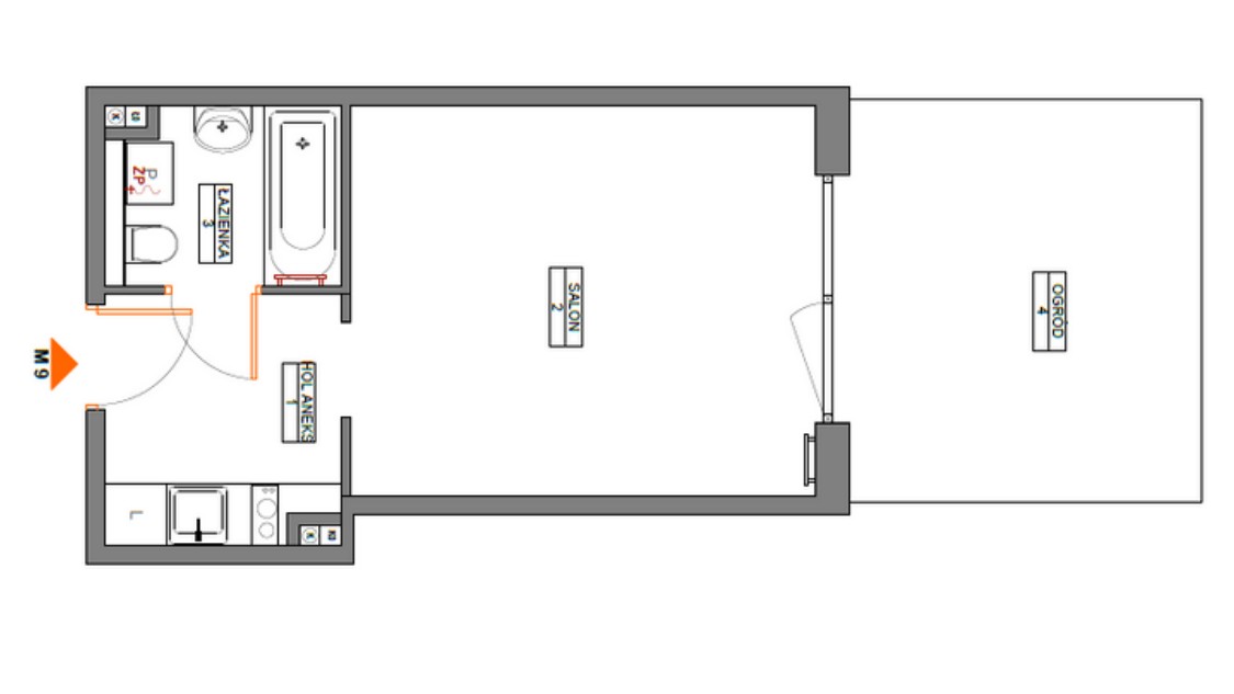
Aleja Magnoliowa A m. 9 Parter 1 25,53 m2
196 581 PLN 7 700 PLN/m2
Historia cen
Zarezerwowane
Powierzchnia 25,53 m2
1 Hol z aneksem 5,37 m2 2 Salon 17,29 m2 3 Łazienka 3,87 m2
Atrybuty Ogródek 13,00 m2 Apteka Action, Dino, Biedronka Sala zabaw (bawialnia) Restauracja, pizzeria, kawiarnia
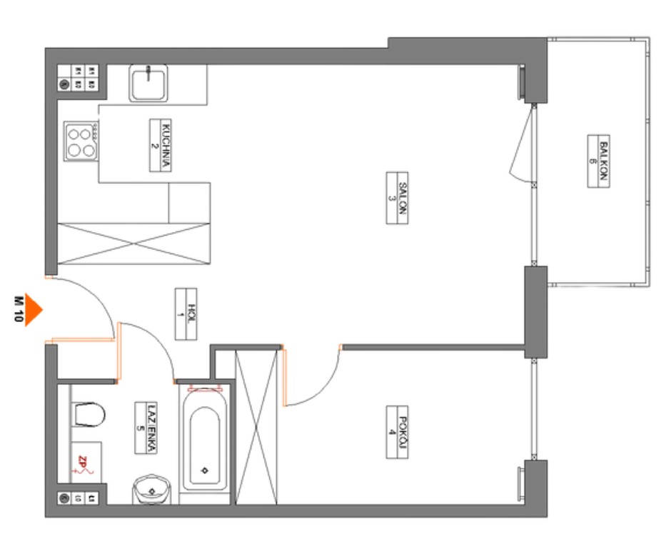
Aleja Magnoliowa A m. 10 Piętro I 2 43,58 m2
331 208 PLN 7 600 PLN/m2
Historia cen
Dostępne
Powierzchnia 43,58 m2
1 Hol 5,11 m2 2 Kuchnia 4,76 m2 3 Salon 19,39 m2 4 Pokój 9,99 m2 5 Łazienka 4,33 m2
Atrybuty Balkon 5,47 m2 Apteka Action, Dino, Biedronka Sala zabaw (bawialnia) Restauracja, pizzeria, kawiarnia
Aleja Magnoliowa A m. 11 Piętro I 2 46,31 m2
351 956 PLN 7 600 PLN/m2
Historia cen
Dostępne
Powierzchnia 46,31 m2
1 Hol 4,81 m2 2 Kuchnia 9,05 m2 3 Salon 16,13 m2 4 Pokój 12,08 m2 5 Łazienka 4,24 m2
Atrybuty Balkon 5,47 m2 Apteka Action, Dino, Biedronka Sala zabaw (bawialnia) Restauracja, pizzeria, kawiarnia
Aleja Magnoliowa A m. 12 Piętro I 2 44,15 m2
335 540 PLN 7 600 PLN/m2
Historia cen
Dostępne
Powierzchnia 44,15 m2
1 Hol 4,23 m2 2 Kuchnia 9,05 m2 3 Salon 16,08 m2 4 Pokój 10,92 m2 5 Łazienka 3,87 m2
Atrybuty Balkon 4,05 m2 Apteka Action, Dino, Biedronka Sala zabaw (bawialnia) Restauracja, pizzeria, kawiarnia
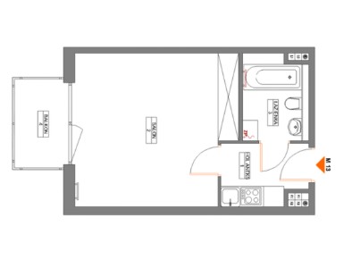
Aleja Magnoliowa A m. 13 Piętro I 1 29,97 m2
227 772 PLN 7 600 PLN/m2
Historia cen
Dostępne
Powierzchnia 29,97 m2
1 Hol 4,63 m2 2 Salon 20,63 m2 3 Łazienka 4,71 m2
Atrybuty Balkon 4,05 m2 Apteka Action, Dino, Biedronka Sala zabaw (bawialnia) Restauracja, pizzeria, kawiarnia
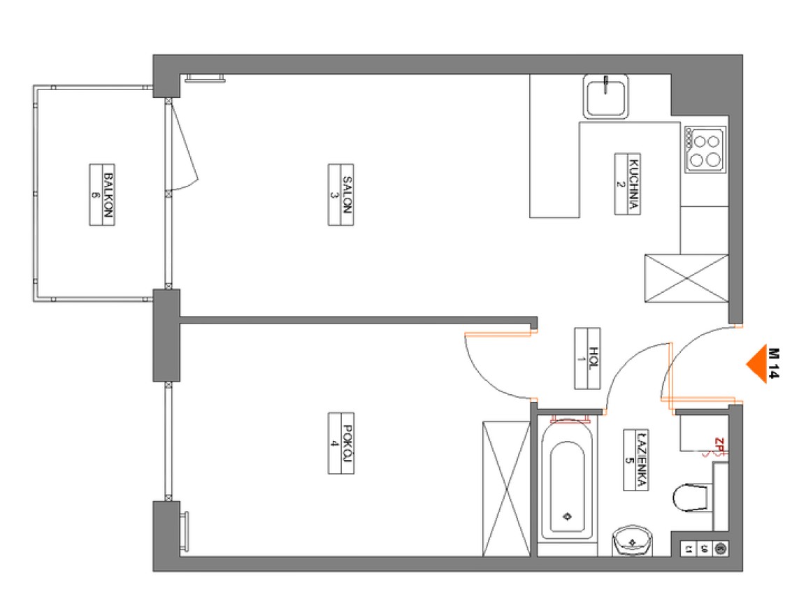
Aleja Magnoliowa A m. 14 Piętro I 2 40,61 m2
308 636 PLN 7 600 PLN/m2
Historia cen
Dostępne
Powierzchnia 40,61 m2
1 Hol 3,26 m2 2 Kuchnia 6,70 m2 3 Salon 13,53 m2 4 Pokój 13,04 m2 5 Łazienka 4,08 m2
Atrybuty Balkon 4,05 m2 Apteka Action, Dino, Biedronka Sala zabaw (bawialnia) Restauracja, pizzeria, kawiarnia
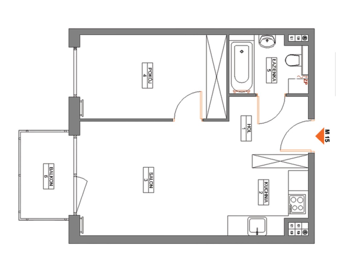
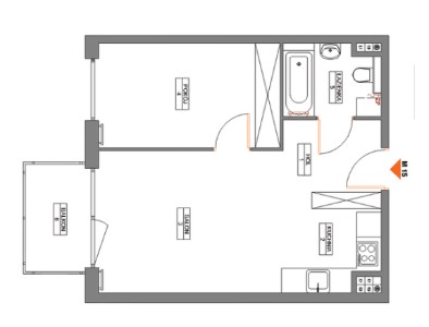
Aleja Magnoliowa A m. 15 Piętro I 2 40,64 m2
308 864 PLN 7 600 PLN/m2
Historia cen
Dostępne
Powierzchnia 40,64 m2
1 Hol 4,23 m2 2 Kuchnia 5,40 m2 3 Salon 15,63 m2 4 Pokój 11,33 m2 5 Łazienka 4,05 m2
Atrybuty Balkon 4,05 m2 Apteka Action, Dino, Biedronka Sala zabaw (bawialnia) Restauracja, pizzeria, kawiarnia
Aleja Magnoliowa A m. 16 Piętro I 2 44,15 m2
335 540 PLN 7 600 PLN/m2
Historia cen
Dostępne
Powierzchnia 44,15 m2
1 Hol 4,23 m2 2 Kuchnia 9,05 m2 3 Salon 16,08 m2 4 Pokój 10,92 m2 5 Łazienka 3,87 m2
Atrybuty Balkon 4,05 m2 Apteka Action, Dino, Biedronka Sala zabaw (bawialnia) Restauracja, pizzeria, kawiarnia
Aleja Magnoliowa A m. 17 Piętro I 2 46,31 m2
351 956 PLN 7 600 PLN/m2
Historia cen
Dostępne
Powierzchnia 46,31 m2
1 Hol 4,81 m2 2 Kuchnia 9,05 m2 3 Salon 16,13 m2 4 Pokój 12,08 m2 5 Łazienka 4,24 m2
Atrybuty Balkon 5,47 m2 Apteka Action, Dino, Biedronka Sala zabaw (bawialnia) Restauracja, pizzeria, kawiarnia
Aleja Magnoliowa A m. 18 Piętro I 2 38,22 m2
290 472 PLN 7 600 PLN/m2
Historia cen
Dostępne
Powierzchnia 38,22 m2
1 Hol 5,56 m2 2 Kuchnia 5,33 m2 3 Salon 13,13 m2 4 Pokój 9,86 m2 5 Łazienka 4,34 m2
Atrybuty Balkon 5,47 m2 Apteka Action, Dino, Biedronka Sala zabaw (bawialnia) Restauracja, pizzeria, kawiarnia
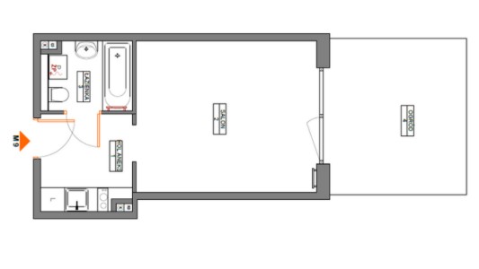
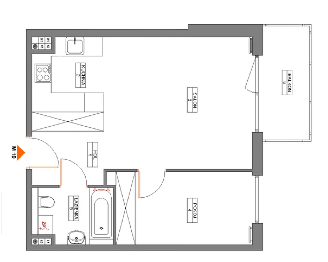
Aleja Magnoliowa A m. 19 Piętro II 2 43,58 m2
331 208 PLN 7 600 PLN/m2
Historia cen
Dostępne
Powierzchnia 43,58 m2
1 Hol 5,11 m2 2 Kuchnia 4,76 m2 3 Salon 19,39 m2 4 Pokój 9,99 m2 5 Łazienka 4,33 m2
Atrybuty Balkon 5,47 m2 Apteka Action, Dino, Biedronka Sala zabaw (bawialnia) Restauracja, pizzeria, kawiarnia
Aleja Magnoliowa A m. 20 Piętro II 2 46,31 m2
351 956 PLN 7 600 PLN/m2
Historia cen
Dostępne
Powierzchnia 46,31 m2
1 Hol 4,81 m2 2 Kuchnia 9,05 m2 3 Salon 16,13 m2 4 Pokój 12,08 m2 5 Łazienka 4,24 m2
Atrybuty Balkon 5,47 m2 Apteka Action, Dino, Biedronka Sala zabaw (bawialnia) Restauracja, pizzeria, kawiarnia
Aleja Magnoliowa A m. 21 Piętro II 2 44,15 m2
335 540 PLN 7 600 PLN/m2
Historia cen
Dostępne
Powierzchnia 44,15 m2
1 Hol 4,23 m2 2 Kuchnia 9,05 m2 3 Salon 16,18 m2 4 Pokój 10,92 m2 5 Łazienka 3,87 m2
Atrybuty Balkon 4,05 m2 Apteka Action, Dino, Biedronka Sala zabaw (bawialnia) Restauracja, pizzeria, kawiarnia
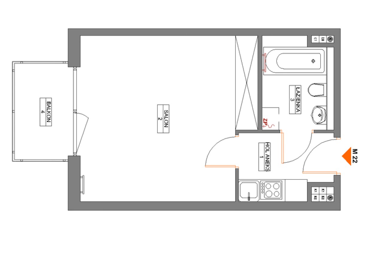
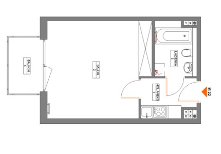
Aleja Magnoliowa A m. 22 Piętro II 1 29,97 m2
227 772 PLN 7 600 PLN/m2
Historia cen
Dostępne
Powierzchnia 29,97 m2
1 Hol 4,63 m2 2 Salon 20,63 m2 3 Łazienka 4,71 m2
Atrybuty Balkon 4,05 m2 Apteka Action, Dino, Biedronka Sala zabaw (bawialnia) Restauracja, pizzeria, kawiarnia
Aleja Magnoliowa A m. 23 Piętro II 2 40,61 m2
308 636 PLN 7 600 PLN/m2
Historia cen
Dostępne
Powierzchnia 40,61 m2
1 Hol 3,26 m2 2 Kuchnia 6,70 m2 3 Salon 13,53 m2 4 Pokój 10,04 m2 5 Łazienka 4,08 m2
Atrybuty Balkon 4,05 m2 Apteka Action, Dino, Biedronka Sala zabaw (bawialnia) Restauracja, pizzeria, kawiarnia
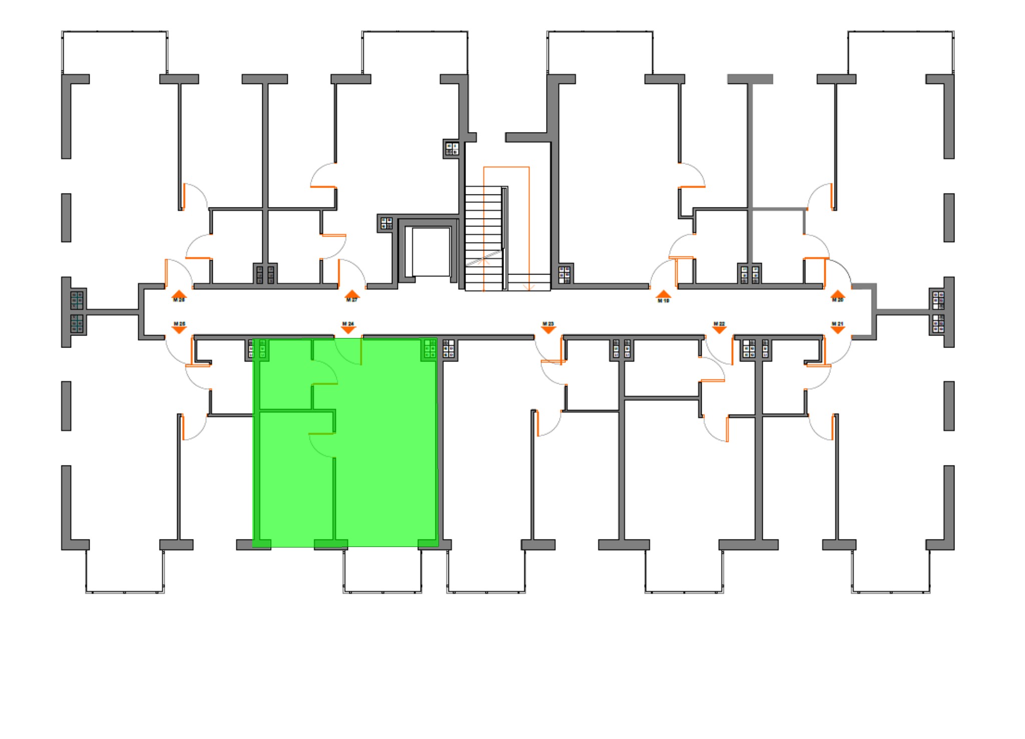
Aleja Magnoliowa A m. 24 Piętro II 2 40,64 m2
308 864 PLN 7 600 PLN/m2
Historia cen
Dostępne
Powierzchnia 40,64 m2
1 Hol 4,23 m2 2 Kuchnia 5,40 m2 3 Salon 15,63 m2 4 Pokój 11,33 m2 5 Łazienka 4,05 m2
Atrybuty Balkon 4,05 m2 Apteka Action, Dino, Biedronka Sala zabaw (bawialnia) Restauracja, pizzeria, kawiarnia
Aleja Magnoliowa A m. 25 Piętro II 2 44,15 m2
335 540 PLN 7 600 PLN/m2
Historia cen
Dostępne
Powierzchnia 44,15 m2
1 Hol 4,23 m2 2 Kuchnia 9,05 m2 3 Salon 16,08 m2 4 Pokój 10,92 m2 5 Łazienka 3,87 m2
Atrybuty Balkon 4,05 m2 Apteka Action, Dino, Biedronka Sala zabaw (bawialnia) Restauracja, pizzeria, kawiarnia
Aleja Magnoliowa A m. 26 Piętro II 2 46,31 m2
351 956 PLN 7 600 PLN/m2
Historia cen
Dostępne
Powierzchnia 46,31 m2
1 Hol 4,81 m2 2 Kuchnia 9,05 m2 3 Salon 16,13 m2 4 Pokój 12,08 m2 5 Łazienka 4,24 m2
Atrybuty Balkon 5,47 m2 Apteka Action, Dino, Biedronka Sala zabaw (bawialnia) Restauracja, pizzeria, kawiarnia
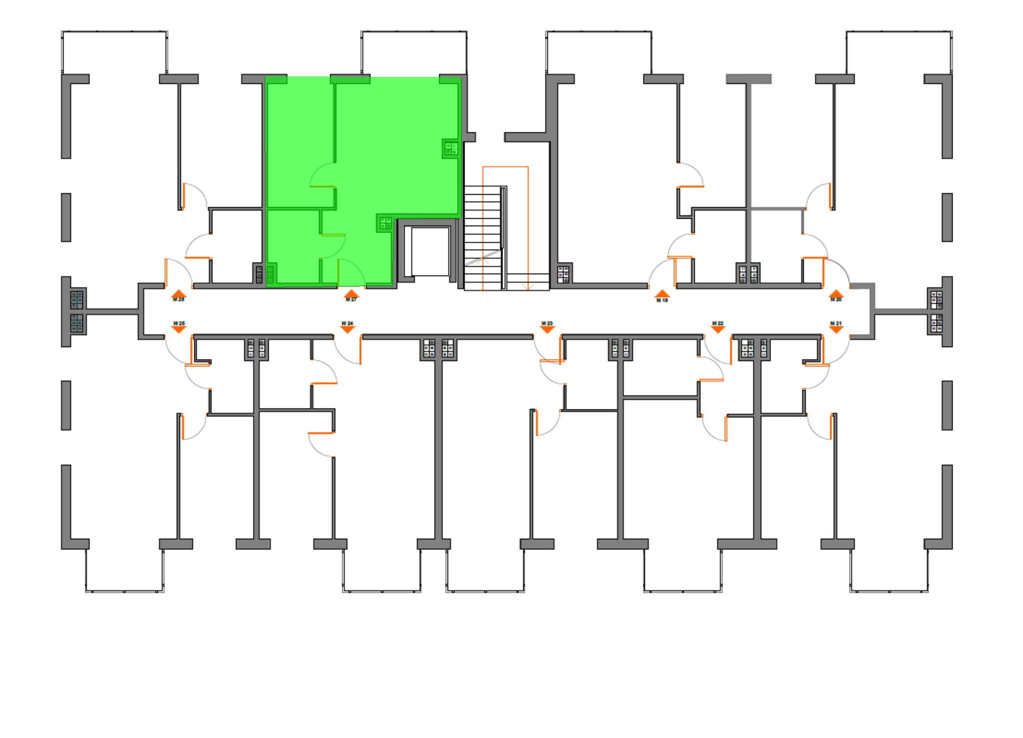
Aleja Magnoliowa A m. 27 Piętro II 2 38,22 m2
290 472 PLN 7 600 PLN/m2
Historia cen
Dostępne
Powierzchnia 38,22 m2
1 Hol 5,56 m2 2 Kuchnia 5,33 m2 3 Salon 13,13 m2 4 Pokój 9,86 m2 5 Łazienka 4,34 m2
Atrybuty Balkon 5,47 m2 Apteka Action, Dino, Biedronka Sala zabaw (bawialnia) Restauracja, pizzeria, kawiarnia
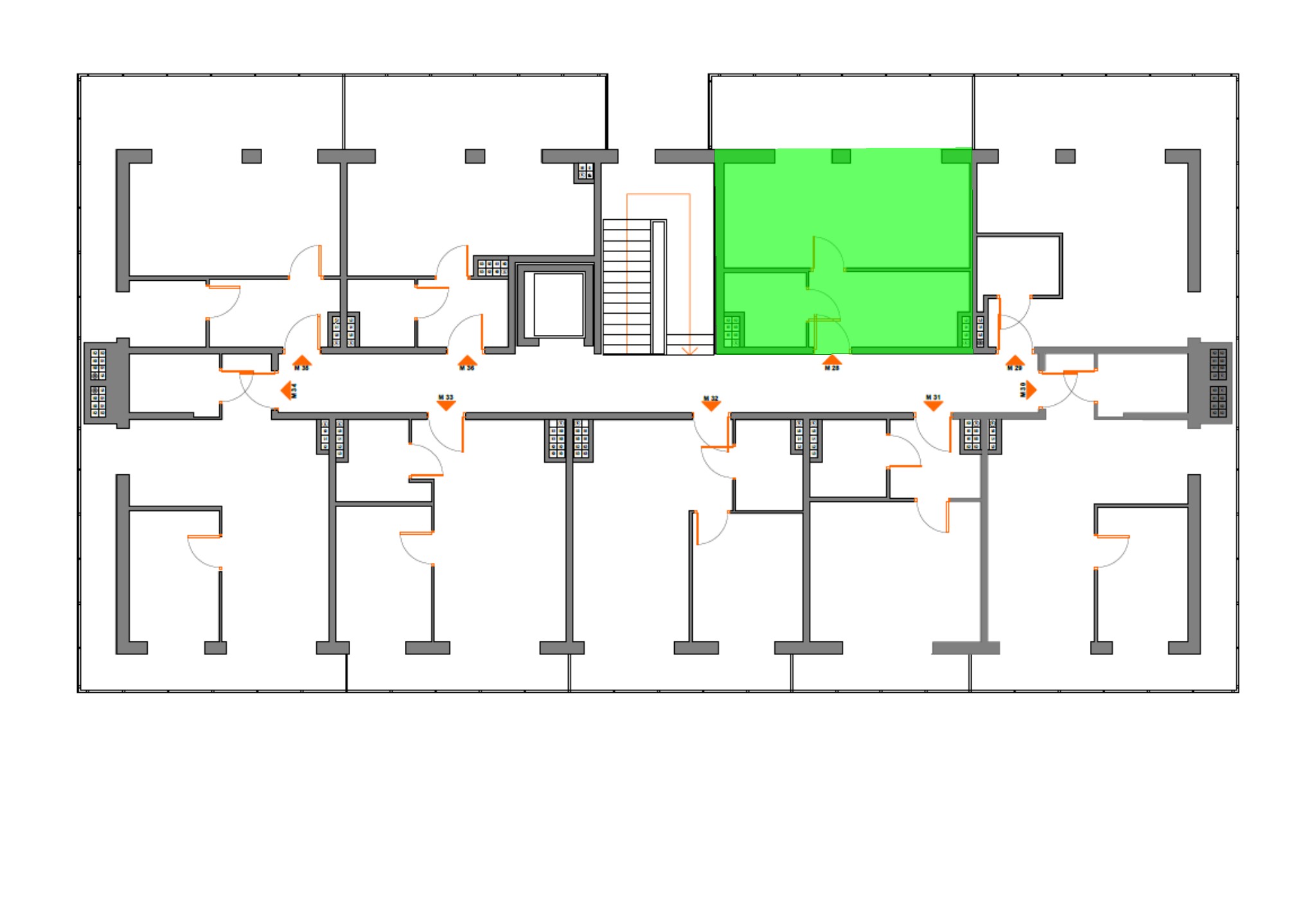
Aleja Magnoliowa A m. 28 Piętro III 1 30,33 m2
230 508 PLN 7 600 PLN/m2
Historia cen
Zarezerwowane
Powierzchnia 30,33 m2
1 Hol z aneksem 8,38 m2 2 Salon 18,22 m2 3 Łazienka 3,73 m2
Atrybuty Balkon 13,40 m2 Apteka Action, Dino, Biedronka Sala zabaw (bawialnia) Restauracja, pizzeria, kawiarnia
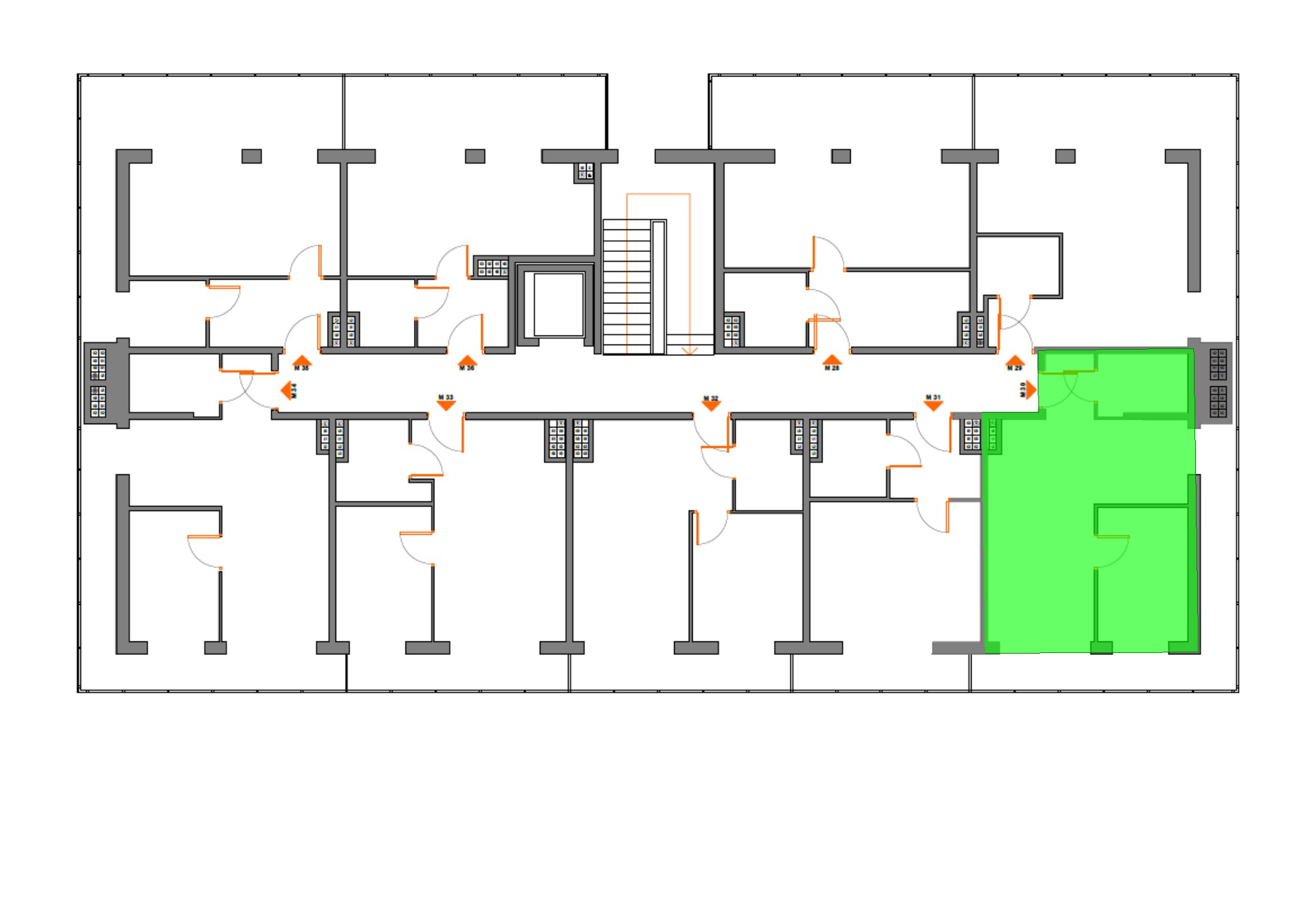
Aleja Magnoliowa A m. 29 Piętro III 1 26,64 m2
202 464 PLN 7 600 PLN/m2
Historia cen
Zarezerwowane
Powierzchnia 26,64 m2
1 Hol 2,56 m2 2 Kuchnia 4,23 m2 3 Salon 16,31 m2 4 Łazienka 3,54 m2
Atrybuty Balkon 18,20 m2 Apteka Action, Dino, Biedronka Sala zabaw (bawialnia) Restauracja, pizzeria, kawiarnia
Aleja Magnoliowa A m. 30 Piętro III 2 36,62 m2
278 312 PLN 7 600 PLN/m2
Historia cen
Zarezerwowane
Powierzchnia 36,62 m2
1 Hol 2,35 m2 2 Kuchnia 5,50 m2 3 Salon 16,41 m2 4 Pokój 8,49 m2 5 Łazienka 3,87 m2
Atrybuty Balkon 12,40 m2 Apteka Action, Dino, Biedronka Sala zabaw (bawialnia) Restauracja, pizzeria, kawiarnia
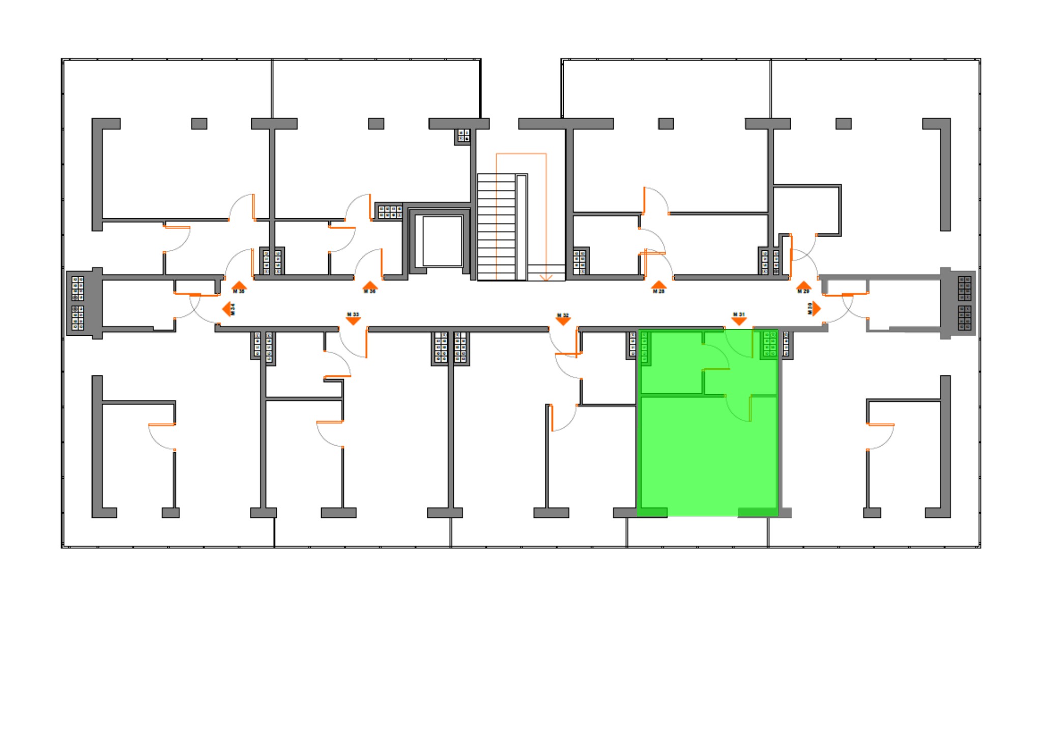
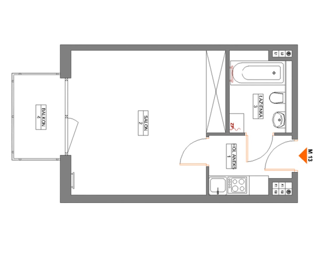
Aleja Magnoliowa A m. 31 Piętro III 1 25,43 m2
193 268 PLN 7 600 PLN/m2
Historia cen
Dostępne
Powierzchnia 25,43 m2
1 Hol z aneksem 4,63 m2 2 Salon 16,95 m2 3 Łazienka 3,85 m2
Atrybuty Balkon 4,40 m2 Apteka Action, Dino, Biedronka Sala zabaw (bawialnia) Restauracja, pizzeria, kawiarnia
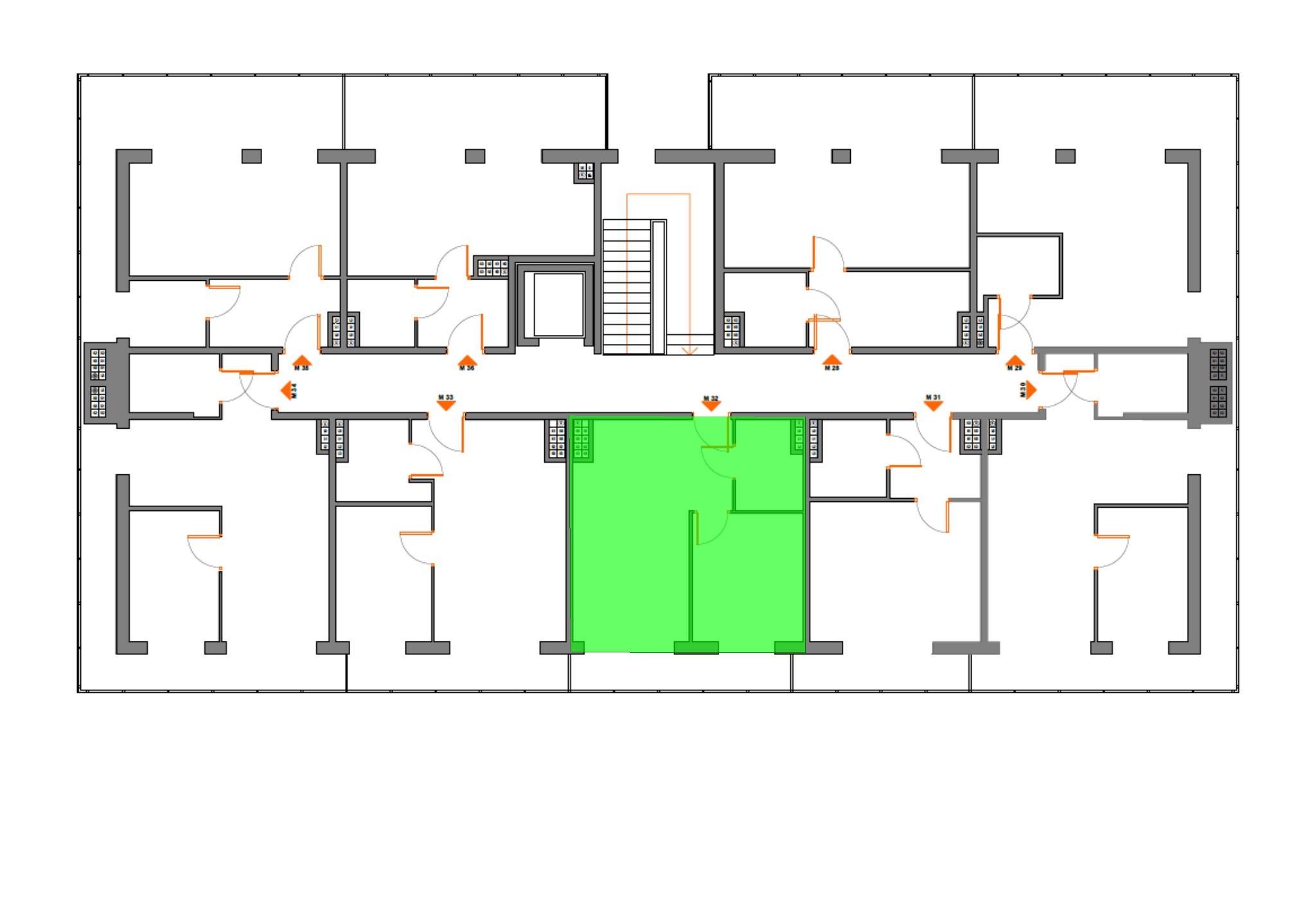
Aleja Magnoliowa A m. 32 Piętro III 2 34,33 m2
260 908 PLN 7 600 PLN/m2
Historia cen
Dostępne
Powierzchnia 34,33 m2
1 Hol 2,90 m2 2 Kuchnia 7,36 m2 3 Salon 10,16 m2 4 Pokój 9,97 m2 5 Łazienka 3,94 m2
Atrybuty Balkon 5,50 m2 Apteka Action, Dino, Biedronka Sala zabaw (bawialnia) Restauracja, pizzeria, kawiarnia
Aleja Magnoliowa A m. 33 Piętro III 2 34,19 m2
259 844 PLN 7 600 PLN/m2
Historia cen
Zarezerwowane
Powierzchnia 34,19 m2
1 Hol 2,60 m2 2 Kuchnia 4,27 m2 3 Salon 14,05 m2 4 Pokój 9,11 m2 5 Łazienka 4,16 m2
Atrybuty Balkon 5,50 m2 Apteka Action, Dino, Biedronka Sala zabaw (bawialnia) Restauracja, pizzeria, kawiarnia
Aleja Magnoliowa A m. 34 Piętro III 2 36,62 m2
278 312 PLN 7 600 PLN/m2
Historia cen
Zarezerwowane
Powierzchnia 36,62 m2
1 Hol 2,35 m2 2 Kuchnia 5,50 m2 3 Salon 16,41 m2 4 Pokój 8,49 m2 5 Łazienka 3,87 m2
Atrybuty Balkon 12,40 m2 Apteka Action, Dino, Biedronka Sala zabaw (bawialnia) Restauracja, pizzeria, kawiarnia
Aleja Magnoliowa A m. 35 Piętro III 1 26,56 m2
201 856 PLN 7 600 PLN/m2
Historia cen
Zarezerwowane
Powierzchnia 26,56 m2
1 Hol z aneksem 5,99 m2 2 Salon 16,96 m2 3 Łazienka 3,61 m2
Atrybuty Balkon 18,30 m2 Apteka Action, Dino, Biedronka Sala zabaw (bawialnia) Restauracja, pizzeria, kawiarnia
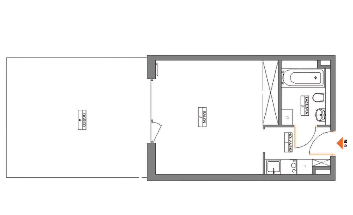
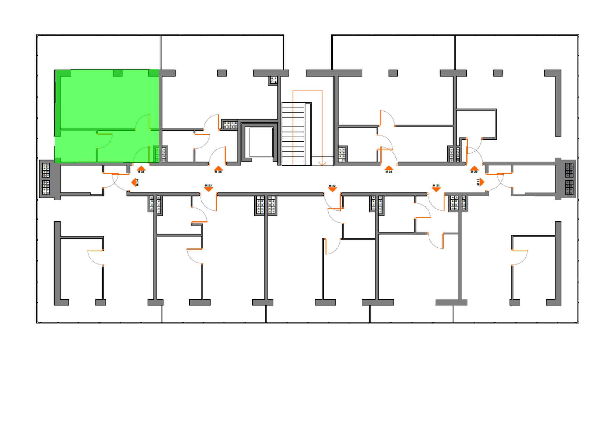
Aleja Magnoliowa A m. 36 Piętro III 1 25,05 m2
190 380 PLN 7 600 PLN/m2
Historia cen
Dostępne
Powierzchnia 25,05 m2
1 Hol z aneksem 4,45 m2 2 Salon 17,76 m2 3 Łazienka 2,84 m2
Atrybuty Balkon 13,30 m2 Apteka Action, Dino, Biedronka Sala zabaw (bawialnia) Restauracja, pizzeria, kawiarnia

Miejsca postojowe

Zadbaj o komfort parkowania - oferujemy zorganizowane miejsca parkingowe z pełną obsługą administracyjną. Opłata za użytkowanie zgodna z cennikiem.

Adres Piętro Pow Powierzchnia Opłata za używanie i zarządzanie Status
Aleja Magnoliowa A m.p. zewn. 70 Miejsca postojowe 13,80 m2
200 PLN/miesiąc
Dostępne
Aleja Magnoliowa A m.p. zewn. 71 Miejsca postojowe 13,80 m2
200 PLN/miesiąc
Dostępne
Aleja Magnoliowa A m.p. zewn. 72 Miejsca postojowe 13,80 m2
200 PLN/miesiąc
Dostępne
Aleja Magnoliowa A m.p. zewn. 73 Miejsca postojowe 13,80 m2
200 PLN/miesiąc
Dostępne
Aleja Magnoliowa A m.p. zewn. 74 Miejsca postojowe 13,80 m2
200 PLN/miesiąc
Dostępne
Aleja Magnoliowa A m.p. zewn. 75 Miejsca postojowe 13,80 m2
200 PLN/miesiąc
Dostępne
Aleja Magnoliowa A m.p. zewn. 76 Miejsca postojowe 13,80 m2
200 PLN/miesiąc
Dostępne
Aleja Magnoliowa A m.p. zewn. 77 Miejsca postojowe 13,80 m2
200 PLN/miesiąc
Dostępne
Aleja Magnoliowa A m.p. zewn. 78 Miejsca postojowe 13,80 m2
200 PLN/miesiąc
Dostępne
Aleja Magnoliowa A m.p. zewn. 79 Miejsca postojowe 13,80 m2
200 PLN/miesiąc
Dostępne
Aleja Magnoliowa A m.p. zewn. 80 Miejsca postojowe 13,80 m2
200 PLN/miesiąc
Dostępne
Aleja Magnoliowa A m.p. zewn. 81 Miejsca postojowe 13,80 m2
200 PLN/miesiąc
Dostępne
Aleja Magnoliowa A m.p. zewn. 82 Miejsca postojowe 13,80 m2
200 PLN/miesiąc
Dostępne
Aleja Magnoliowa A m.p. zewn. 83 Miejsca postojowe 13,80 m2
200 PLN/miesiąc
Dostępne
Aleja Magnoliowa A m.p. zewn. 84 Miejsca postojowe 13,80 m2
200 PLN/miesiąc
Dostępne
Aleja Magnoliowa A m.p. zewn. 85 Miejsca postojowe 13,80 m2
200 PLN/miesiąc
Dostępne
Aleja Magnoliowa A m.p. zewn. 86 Miejsca postojowe 13,80 m2
200 PLN/miesiąc
Dostępne
Aleja Magnoliowa A m.p. zewn. 87 Miejsca postojowe 13,80 m2
200 PLN/miesiąc
Dostępne
Aleja Magnoliowa A m.p. zewn. 88 Miejsca postojowe 13,80 m2
200 PLN/miesiąc
Dostępne
Aleja Magnoliowa A m.p. zewn. 89 Miejsca postojowe 13,80 m2
200 PLN/miesiąc
Dostępne
Aleja Magnoliowa A m.p. zewn. 90 Miejsca postojowe 13,80 m2
200 PLN/miesiąc
Dostępne
Aleja Magnoliowa A m.p. zewn. 91 Miejsca postojowe 13,80 m2
200 PLN/miesiąc
Dostępne
Aleja Magnoliowa A m.p. zewn. 92 Miejsca postojowe 13,80 m2
200 PLN/miesiąc
Dostępne
Aleja Magnoliowa A m.p. zewn. 93 Miejsca postojowe 13,80 m2
200 PLN/miesiąc
Dostępne
Aleja Magnoliowa A m.p. zewn. 94 Miejsca postojowe 13,80 m2
200 PLN/miesiąc
Dostępne
Aleja Magnoliowa A m.p. zewn. 95 Miejsca postojowe 13,80 m2
200 PLN/miesiąc
Dostępne
Aleja Magnoliowa A m.p. zewn. 96 Miejsca postojowe 13,80 m2
200 PLN/miesiąc
Dostępne
Aleja Magnoliowa A m.p. zewn. 97 Miejsca postojowe 13,80 m2
200 PLN/miesiąc
Dostępne
Aleja Magnoliowa A m.p. zewn. 98 Miejsca postojowe 13,80 m2
200 PLN/miesiąc
Dostępne
Aleja Magnoliowa A m.p. zewn. 99 Miejsca postojowe 13,80 m2
200 PLN/miesiąc
Dostępne
Aleja Magnoliowa A m.p. zewn. 100 Miejsca postojowe 13,80 m2
200 PLN/miesiąc
Dostępne
Aleja Magnoliowa A m.p. zewn. 101 Miejsca postojowe 13,80 m2
200 PLN/miesiąc
Dostępne
Aleja Magnoliowa A m.p. zewn. 102 Miejsca postojowe 13,80 m2
200 PLN/miesiąc
Dostępne
Aleja Magnoliowa A m.p. zewn. 103 Miejsca postojowe 13,80 m2
200 PLN/miesiąc
Dostępne
Aleja Magnoliowa A m.p. zewn. 104 Miejsca postojowe 13,80 m2
200 PLN/miesiąc
Dostępne
Aleja Magnoliowa A m.p. zewn. 105 Miejsca postojowe 13,80 m2
200 PLN/miesiąc
Dostępne
Aleja Magnoliowa A m.p. zewn. 106 Miejsca postojowe 13,80 m2
200 PLN/miesiąc
Dostępne
Aleja Magnoliowa A m.p. zewn. 107 Miejsca postojowe 13,80 m2
200 PLN/miesiąc
Dostępne
Aleja Magnoliowa A m.p. zewn. 108 Miejsca postojowe 13,80 m2
200 PLN/miesiąc
Dostępne
Aleja Magnoliowa A m.p. zewn. 109 Miejsca postojowe 13,80 m2
200 PLN/miesiąc
Dostępne
Aleja Magnoliowa A m.p. zewn. 110 Miejsca postojowe 13,80 m2
200 PLN/miesiąc
Dostępne
Aleja Magnoliowa A m.p. zewn. 111 Miejsca postojowe 13,80 m2
200 PLN/miesiąc
Dostępne
Aleja Magnoliowa A m.p. zewn. 112 Miejsca postojowe 13,80 m2
200 PLN/miesiąc
Dostępne
Aleja Magnoliowa A m.p. zewn. 113 Miejsca postojowe 13,80 m2
200 PLN/miesiąc
Dostępne
Aleja Magnoliowa A m.p. zewn. 114 Miejsca postojowe 13,80 m2
200 PLN/miesiąc
Dostępne
Aleja Magnoliowa A m.p. zewn. 115 Miejsca postojowe 13,80 m2
200 PLN/miesiąc
Dostępne
Aleja Magnoliowa A m.p. zewn. 116 Miejsca postojowe 13,80 m2
200 PLN/miesiąc
Dostępne
Prospekt informacyjny

W związku z realizacją inwestycji mogą wystąpić dodatkowe świadczenia pieniężne, niezwiązane bezpośrednio z ceną lokalu. Do takich kosztów zalicza się w szczególności:

Wszelkie dodatkowe opłaty będą ustalane indywidualnie i zgodnie z obowiązującymi przepisami prawa.


Zadzwoń do nas!

Masz pytania? Nasi doradcy chętnie przedstawią szczegóły inwestycji – skontaktuj się z nami i zarezerwuj swoje wymarzone M!

690 134 881